Products & Modules
Hire units for all needs
More than 25,000 rental containers and more than 80,000 units, which are hired out via our trading partners, are available for you.
- Facts
- Additional equipment
- Special offers
- Reference projects
Your advantages:
Personal advice on site
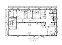
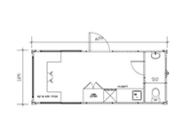
A great variety of container
types available e.g. WC
cabins male/female, modular
buildings, and many others
Inhouse assembly teams
Delivery/supply promptly ex
Delivery through our trading
partners close to you ex depot
Direct hire in Austria, Italy, Switzerland, Poland, Hungary, Romania, Bulgaria, Czech Republic, Slovakia and Slovenia. Hire possibilities in all other countries through our trading partners.
Dimensions (mm) and weights (kg):

1. also available with external height 2,800 mm / internal height 2,540 mm
2. depending on layout

Applications
BedroomCommon roomEventsLiving areaSpare officeTeam room
Furniture for hire and hire options
Hire your required configuration
instantly usable hire furniture
low hire rates
further hire furniture on
request
* Hire furniture is only available in combination with hire containers.
mobile cabin
![]() |
mobile cabin
|
mobile cabin
![]() |
mobile cabin
![]() |
mobile cabin
![]() |
mobile cabin
![]() |


































